Osina 7p

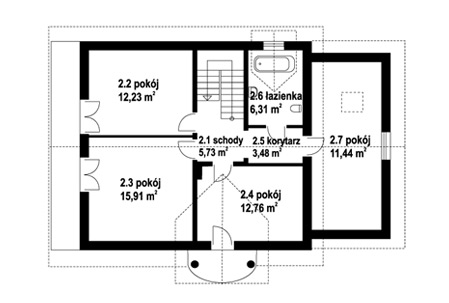
Budynek podpiwniczony, w piwnicach garaż. Na parterze część dzienna, na poddaszu cztery pokoje (sypialnie) i łazienka.


Symbol : 8
Powierzchnia użytkowa : 152.10
Powierzchnia użytkowa piwnicy : 64.94
Powierzchnia użytkowa garażu : 0.00
Powierzchnia użytkowa pomieszczenia gospodarczego : 0.00
Powierzchnia użytkowa kotłowni : 0.00
Powierzchnia użytkowa zabudowy : 120.60
Powierzchnia całkowita : 288.00
Szerokość : 21.50
Długość : 18.00
Kubatura : 830.00
Kalenica : 8.11
Dach : 38.00
Dodatki :
Cena projektu : 1900.00
Garaż : Tak
Parterowy : Nie
Piwnica : Tak

Elewacja

Rzuty

Wizualizacje