Makowo

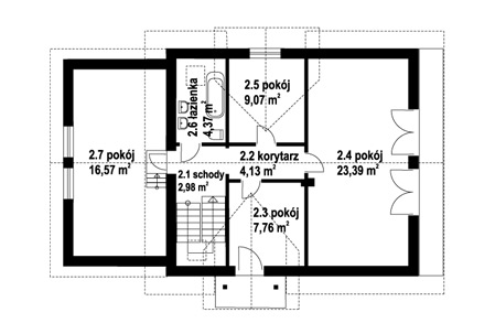
Budynek mieszkalny z dobudowanym garażem. Kuchnia połączona z salonem. Na poddaszu cztery pokoje, łazienka. Kominek z możliwością rozprowadzania ciepła.


Symbol : 7
Powierzchnia użytkowa : 134.12
Powierzchnia użytkowa piwnicy : 0.00
Powierzchnia użytkowa garażu : 18.63
Powierzchnia użytkowa pomieszczenia gospodarczego : 0.00
Powierzchnia użytkowa kotłowni : 0.00
Powierzchnia użytkowa zabudowy : 128.00
Powierzchnia całkowita : 248.60
Szerokość : 17.00
Długość : 22.00
Kubatura : 660.00
Kalenica : 8.36
Dach : 42.00
Dodatki :
Cena projektu : 1700.00
Garaż : Tak
Parterowy : Nie
Piwnica : Nie

Elewacja

Rzuty

Wnętrze

Wizualizacje