Barcin b +garaż

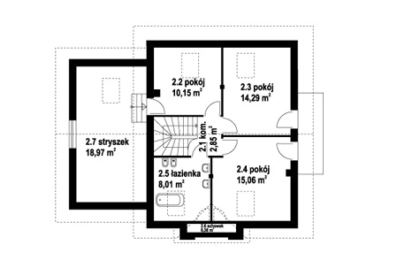
nieduży dom z dobudowanym garażem,na parterze część dzienna,na poddaszu trzy sypialnie,łazienka i strych


Symbol : 2
Powierzchnia użytkowa : 140.95
Powierzchnia użytkowa piwnicy : 0.00
Powierzchnia użytkowa garażu : 19.60
Powierzchnia użytkowa pomieszczenia gospodarczego : 0.00
Powierzchnia użytkowa kotłowni : 0.00
Powierzchnia użytkowa zabudowy : 123.00
Powierzchnia całkowita : 0.00
Szerokość : 18.00
Długość : 22.00
Kubatura : 603.00
Kalenica : 8.40
Dach : 38.00
Dodatki :
Cena projektu : 1700.00
Garaż : Tak
Parterowy : Nie
Piwnica : Nie

Elewacja

Rzuty

Wizualizacje