Bukowo + garaż

Parterowy dom z poddaszem użytkowym, dwa pokoje dodatkowe na parterze.


Symbol : 17
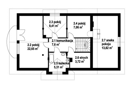
Powierzchnia użytkowa : 148.53
Powierzchnia użytkowa piwnicy : 0.00
Powierzchnia użytkowa garażu : 19.82
Powierzchnia użytkowa pomieszczenia gospodarczego : 0.00
Powierzchnia użytkowa kotłowni : 0.00
Powierzchnia użytkowa zabudowy : 132.00
Powierzchnia całkowita : 229.00
Szerokość : 16.50
Długość : 23.50
Kubatura : 698.00
Kalenica : 7.50
Dach : 40.00
Dodatki :
Cena projektu : 1700.00
Garaż : Tak
Parterowy : Nie
Piwnica : Nie

Elewacja

Rzuty

Wizualizacje